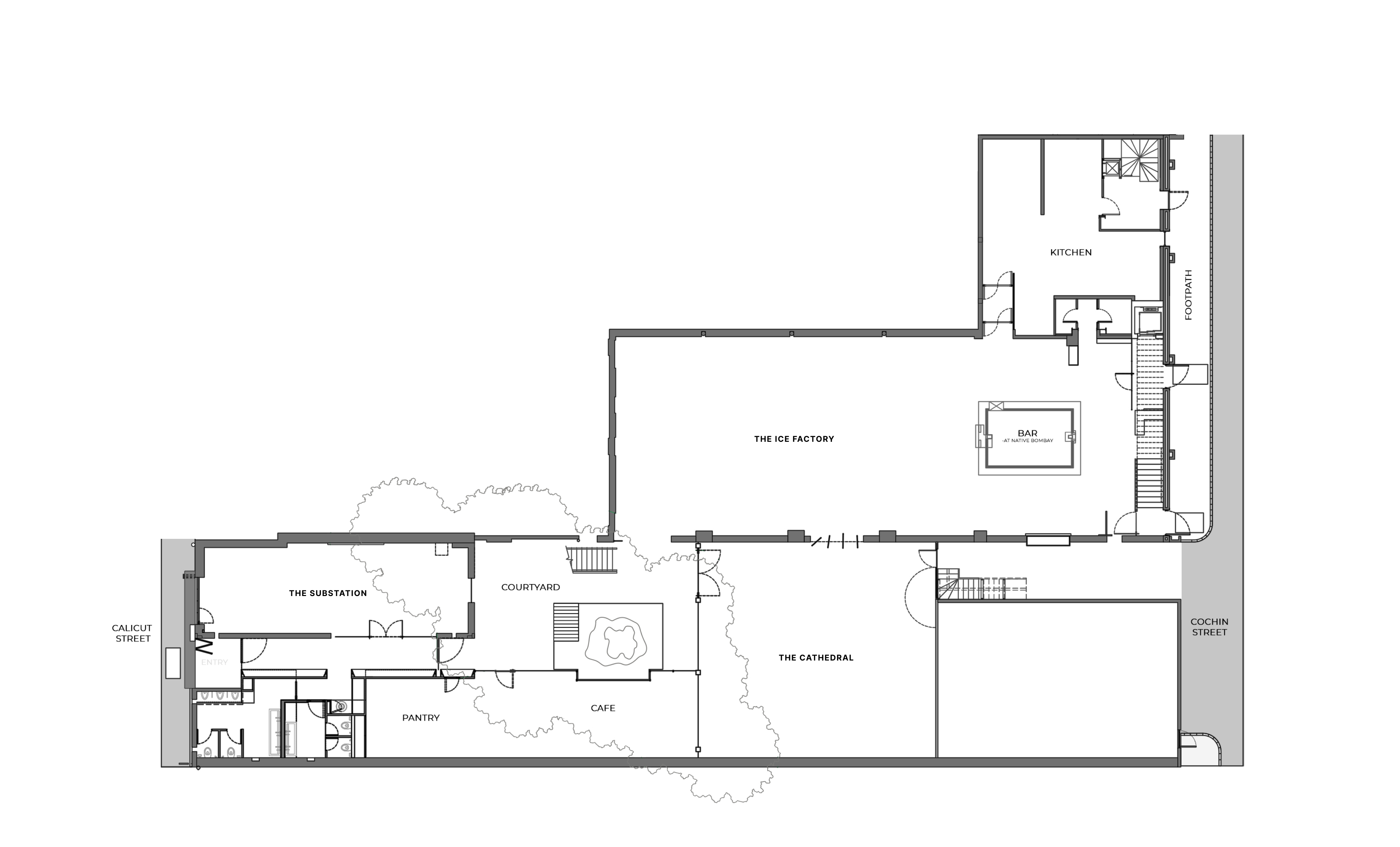
Abutting Calicut Street, the old substation has been faithfully and innovatively restored
and now forms a visual gateway to the central courtyard and The Cathedral beyond.
The gable roof not only allows diffused light to filter into this space
but also reveals views of the landmark chimney.


The Substation, the gateway to IFBE, is perfect for smaller displays
or to introduce a larger exhibition being held inside.
SpaceSpecification




Features
-
Area: 580 sq ft
-
Max Usable Height: 10ft 6in
-
Standing capacity: About 65 people
-
Configurable Seating
-
Wall Space & Hanging Facility
-
In-house Culinary Team
Equipment
- BenQ Short Throw Projector
- Screen Size: 120 inches (diagonal)
- Aspect Ratio: 16:9
- HDMI Input (underneath projector, AV Rack)
- Built-in Adjustable Track Lighting (Warm Colour Temperature)
- Built-in Speaker/PA System
- Lapel Mic Available
- Exhibitions
- Performances
- Film Screenings
- Panel Discussions
- Interactive Sessions
- Workshops
Design Detail
Events
In this space
The creative forces that bring this space to life.
More than a venue, the Substation is a catalyst. A few snapshots of how this space redefined the events it hosted.
For updated terms and rates of reservation, reach us at:
Phone: 9619024000
Email: info@ifbe.space
Enquire now